Home
Architecture
Urbanisme
Equipe
News
Contact
Menu
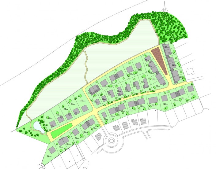
Bascharage
397,38 ares / 50 unités
Berg
Détails
Share via
Facebook
Twitter
LinkedIn
Mix
Email
Print
Copy Link
Powered by
Social Snap
Copy link
Copy
Copied
Powered by
Social Snap
Scroll to top